• banner
  • banner
  • banner
  • banner
  • banner
  • banner

We are
Open

Open offices of the future

Open is a high-quality and energy-neutral office building with a surface area of approx. 18,000 m2. It is being built in the district of Kronenburg, the largest office location in Amstelveen and one of the largest in the Metropolitan Region of Amsterdam. In the coming years, this area of approximately 25 hectares is set to be transformed into a dynamic all-round campus. A place where people can live, work and meet each other. With Open as the centrepiece.

Bright and airy in Open

Open breathes space

Open is based on transparency, both literally and metaphorically. The iconic building will soon be a welcome location on the campus in which people can meet, work and relax. Thanks to the almost completely glazed facade, the building blends into its green and vibrant surroundings.

There are various amenities on the ground floor. The office floors are situated around a central atrium that is linked to stairways and meeting points. Nothing but the best, because the building has a high-quality finish. Kronenburg Amstelveen, in the middle of the Metropolitan Region of Amsterdam, offers businesses everything they might expect from a modern new office building. Like to know more about the innovations in Open? Read on and download the digital brochure.

banner-2
storage/files/69971a2310d33c1f9f56962ac5f03d1b.png

Open services

Open is a service-oriented office building in which you can enjoy the following amenities:

  • Spacious entrance hall, including reception function
  • Floors 3 to 7 have their own roof terrace
  • More than enough bicycle parking spaces, including changing area with showers
  • Spacious parking
  • Communal amenities on the ground floor, such as a conference centre, lounge area, gym, coffee bar, auditorium and more.

Open is accessible to everybody

Business hub with an Open mindset

Strategically, you couldn’t wish for a better location for your business. Open isn’t just an efficient building in terms of its finishing – the location itself is also one of the factors that make the building so attractive. With a direct infrastructure to and from the main hubs in the Netherlands – such as Schiphol Airport and Amsterdam – Open is the perfect location for your business. Like to know more about travel times or hotspots in the surroundings? Then view the location map here.

Open offices

Ground floor

office

Specifications

RFA: 2216 m2

Amenities on floor: Restaurant, Coffee Corner, Conference Space

1st floor

office

Specifications

Office space: 2201 m2 RFA

Communal space: 263 m2 RFA

2nd floor

office

Specifications

Office space: 1991 m2 RFA

Communal space: 291 m2 RFA

3rd floor

office

Specifications

Office space: 1744 m2 RFA

Communal space: 325 m2 RFA

Amenities on floor: Direct access to the terrace

4th floor

office

Specifications

Office space: 1976 m2 RFA

Communal space: 312 m2 RFA

Amenities on floor: Direct access to the terrace

5th floor

office

Specifications

Office space: 1863 m2 RFA

Communal space: 276 m2 RFA

Amenities on floor: Direct access to the terrace

6th floor

office

Specifications

Office space: 1770 m2 RFA

Communal space: 250 m2 RFA

Amenities on floor: Direct access to the terrace

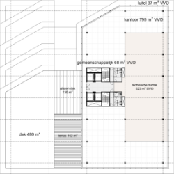
7th floor

office

Specifications

Office space: 795 m2 RFA

Communal space: 68 m2 RFA

Amenities on floor: Direct access to the terrace

Sustainability in Open

Open is the new standard
for sustainability

In the area of sustainability, Open has raised the bar by taking that important extra step. We have done everything possible to realise an energy-neutral building. Would you like to know how we achieved that? Click here to read more about all the measures we took.

Read more

storage/files/ac3d398a15fe7047a17e44314e8a2e72.jpg
storage/files/8299aa51d19756d0feaeefcbb61896a5.jpg

Contact

Do you have any questions or can we help you with anything else? Then please fill in the form displayed below. We will contact you as soon as we receive your question(s).